CASA en VENTA en SIERRA AZUL, SAN LUIS POTOSÍ — Zona Diamante, SLP.
- Precio: $9,957,000/MX
- Precio: $9,957,000/MX
Información general
- Casas en Fraccionamiento Privado
- 287.21 M2
- 300 M2
- 4
- 2
- 3
Descripción
Por qué esta propiedad es una oportunidad única
Esta residencia en Sierra Azul representa la cima del estilo de vida contemporáneo en San Luis Potosí, ofreciendo una combinación perfecta de seguridad privada y diseño funcional. Ubicada en una de las zonas con mayor demanda del Poniente, esta propiedad destaca por sus amplias terrazas con vista y su proximidad estratégica a los mejores centros educativos y de salud de la capital potosina.
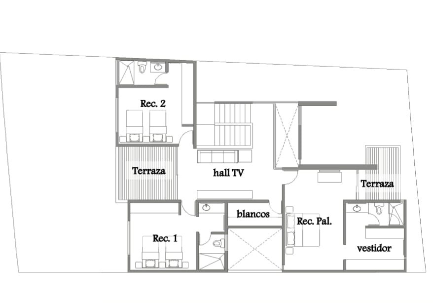
Distribución y Espacios
El diseño arquitectónico prioriza la privacidad y la convivencia social. En la Planta Baja, el área social fluye desde un elegante recibidor hacia la estancia y comedor de concepto abierto, conectados directamente con una cocina integral equipada que incluye área de antecomedor. El jardín privado ofrece un refugio al aire libre, complementado por un área de servicios completa que incluye cuarto de lavado, patio y un cuarto de servicio con baño independiente.
En la Planta Alta, la zona íntima cuenta con un Hall de TV ideal para el descanso familiar y un clóset de blancos. Las 3 recámaras están diseñadas como suites independientes, cada una con su propio baño; la recámara principal destaca por un generoso vestidor de lujo. Además, las 2 terrazas superiores permiten disfrutar de los atardeceres característicos del poniente potosino.
Ubicación Estratégica y Conectividad
Situada sobre Av. Parque Chapultepec, esta propiedad garantiza una conectividad envidiable en el código postal 78295. A pocos minutos de distancia se encuentran puntos de referencia clave para la vida familiar y profesional:
- Educación: A pasos del Tecmilenio Campus San Luis Potosí y el Colegio Internacional Terranova.
- Salud y Comercio: Cercanía inmediata al Hospital Lomas de San Luis y a solo 12 minutos de Costco Wholesale.
- Recreación: Acceso rápido al Parque Tangamanga I, el pulmón verde más importante de la ciudad.
Ventajas Clave de Inversión y Estilo de Vida
- Plusvalía: Sierra Azul es una de las colonias con mayor crecimiento de valor por m² en SLP, consolidada como una inversión patrimonial segura.
- Seguridad: Fraccionamiento exclusivo con acceso controlado y vigilancia las 24 horas.
- Equipamiento Superior: Cuenta con cocina integral, clósets terminados, acabados de primera calidad y espacios de almacenamiento optimizados.
Especificaciones Técnicas (Ficha Rápida)
| Característica | Detalle |
| Precio | $9,957,000 MXN |
| Terreno | 300 m2 |
| Construcción | 287.21 m2 |
| Habitaciones | 3 Recámaras con baño |
| Baños | 4 Baños Completos |
| Medio Baños | 1 Medio Baño |
| Estacionamiento | 2 Espacios techados |
¿Te gustaría agendar una visita en esta propiedad de Sierra Azul? Contacta hoy a Bienes Inmuebles DB. (Disponibilidad sujeta a cita).
Selección Exclusiva de Bienes Inmuebles DB
Dirección
-
Dirección: Av. Parque Chapultepec
-
Ciudad: San Luis Potosí
-
Estado: San Luis Potosí
-
Código Postal: 78295
-
País: México
Detalles
-
ID propiedad L-0123
-
Precio Precio: $9,957,000/MX
-
Construcción 287.21 M2
-
Área de terreno 300 M2
-
Dormitorios 3
-
Baños 4
-
Garajes 2
-
Tipo de propiedad Casas en Fraccionamiento Privado
-
Estado de la propiedad Propiedades en Venta
Más detalles
-
Medio Baño 1



















